PROJEKT:
REWITALIZACJA DAWNEGO BUDYNKU "RZECZYPOSPOLITEJ UJAZDOWSKIEJ" WRAZ Z PRZEBUDOWĄ, ROZBUDOWĄ I ZAGOSPODAROWANIEM TERENU PRZY UL. JAZDÓW 5 W WARSZAWIE
PROJEKT KONCEPCYJNY
INWESTOR:
WOJEWÓDZKA STACJA POGOTOWIA RATUNKOWEGO I TRANSPORTU SANITARNEGO "MEDITRANS" SAMODZIELNY PUBLICZNY ZAKŁAD OPIEKI ZDROWOTNEJ
ZESPÓŁ AUTORSKI:
TOMASZ GINTER, ŁUKASZ KATARZYŃSKI, ADRIANNA BUZEK
WSPÓŁPRACA PROJEKTOWA:
KONSTRUKCJA: ZBIGNIEW CIŃSKI, OCHRONA P-POŻ: DAMIAN SZCZEBIEWSKI
PROJEKT/REALIZACJA:
2024
POWIERZCHNIA:
1189 m2
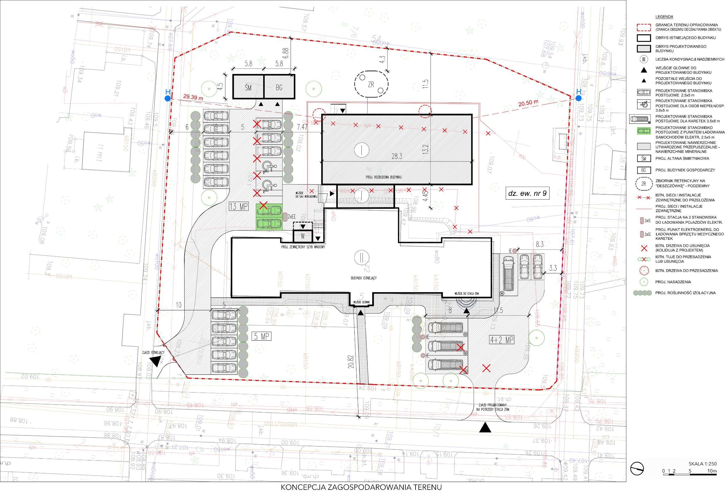
Niniejszy projekt obejmuje swoim zakresem Rewitalizację dawnego budynku „Rzeczypospolitej Ujazdowskiej” wraz z przebudową i rozbudową na potrzeby Mazowieckiego Centrum Edukacji Ratownictwa Medycznego oraz Stacji Wyczekiwania ZRM wraz z zagospodarowaniem terenu przy ul. Jazdów 5 w Warszawie.
W ramach przebudowy istniejącego budynku zostanie całkowicie wydzielona część dla Stacji Wyczekiwania ZRM z niezależnym wejściem od strony ul. Jazdów, jak to jest obecnie. Pozostała część tkanki historycznej zostanie poddana przebudowie i zmianie sposobu użytkowania na potrzeby funkcjonowania przestrzeni wykładowo czeniowych związanych z działalnością Centrum Edukacji Ratownictwa Medycznego.
Projektowaną rozbudowę istniejącego budynku opracowano jako nowoczesną, kontrastującą z historycznym XIX-wiecznym budynkiem. Stanowi ona przede wszystkim pawilon wykładowy wraz z wycofaną częścią łączącą nową kubaturę z budynkiem murowanym. Założeniem jest stworzenie wizualnie lekkiej, przeszklonej bryły ze stropodachem tak aby nie dominowała nad zabytkową tkanką.

