PROJEKT:
PROJEKT KONCEPCYJNY BUDYNKU NOWEJ SIEDZIBY STAROSTWA POWIATOWEGO W TORUNIU
PROJEKT KONCEPCYJNY
INWESTOR:
POWIAT TORUŃSKI
ZESPÓŁ AUTORSKI:
TOMASZ GINTER, ŁUKASZ KATARZYŃSKI, ADRIANNA BUZEK, EWA MUCHA, KATARZYNA DURMAJ, KAROL RYTEL-ANDRJANIK
WSPÓŁPRACA PROJEKTOWA:
WIZUALIZACJE: MONOKOLOR
PROJEKT/REALIZACJA:
2024
POWIERZCHNIA:
15359 m2
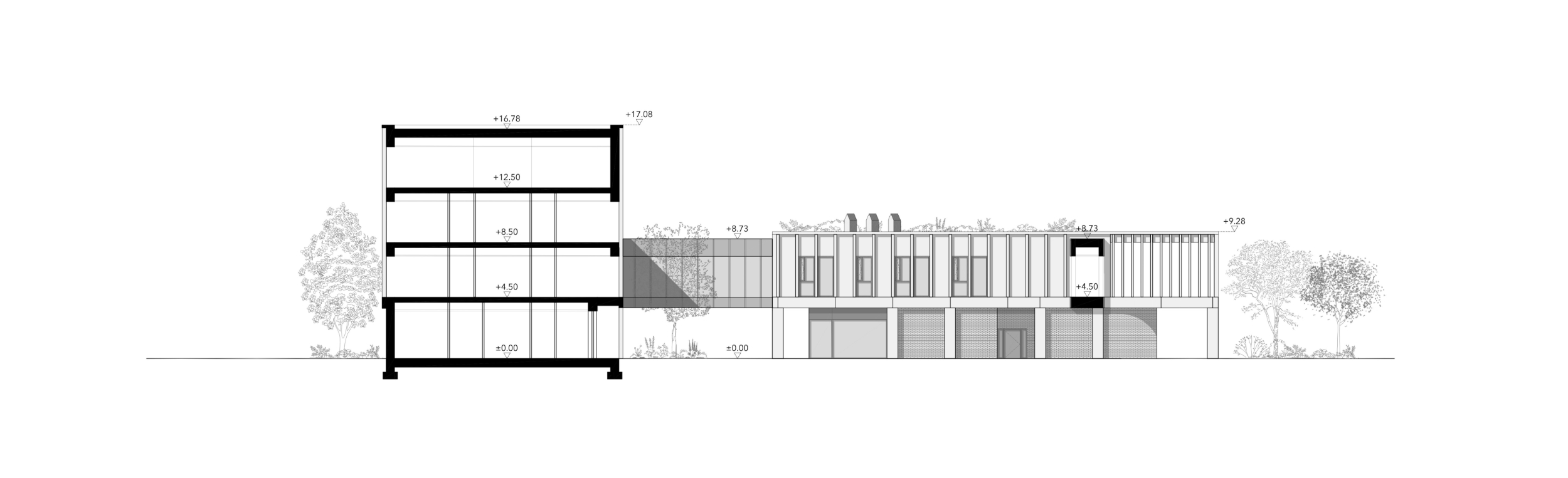
Główną ideą było stworzenie zabudowy miastotwórczej bezpośrednio powiązanej z otoczeniem – bez wydzieleń i bez barier. Zabudowany kwartał naturalnie ustanawia strefy publicznie/półpubliczne takie jak wewnętrzny dziedziniec z placem zabaw czy siłownię plenerową - obszary dostępne dla mieszkańców również poza godzinami pracy Urzędu.
Silnym założeniem wyjściowym w kontekście tworzenia architektury proekologicznej było zachowanie charakterystycznego szpaleru drzew istniejących. Kompozycja przestrzenna budynku Starostwa opiera się na stworzeniu ogólnodostępnego zielonego patio w środku założenia. Główna oś budynku wprowadza użytkowników na wewnętrzny dziedziniec, gdzie umieszczono akcent w postaci spływającej po fasadzie garażu kaskadowej fontanny. Poprowadzone miękkimi liniami pola zróżnicowanej wysokościowo i gatunkowo zieleni dziedzińca stanowią kontrapunkt do rygoru rytmu i kolorystyki architektury. Przedpole projektowanego budynku ma charakter bardziej uporządkowany i reprezentacyjny.

